Immobilienmakler Grundstücke Nowy Tomysl Polen
E-Mail Immobilienmakler Grundstücke Lebus Polen
Grundstück
Nowy Tomysl Lebus Polen
Immobilienmakler Verkäufer von Grundstücken in Trzciel Lebus Polen
Grundstück Polen
Grundstücke bei Nowy Tomysl Polen

Polen bei Nowy Tomysl Grundstück in der Woiwodschaft Lebus / Lubuskie
zum Kaufen / Verkäufer

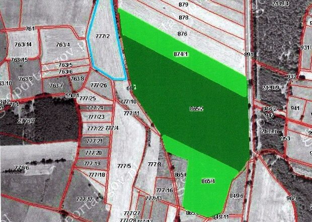
Gewerbegrundstück / Grundstücke 140.000 m²zwischen Swiebodzin und
Nowy Tomysl in Trzciel ( Lebus ) Polen

Grundstück an der A2 in Polen
  • Lage: südlich von Trzciel / Lebus / Polen, unweit der Autobahn A2 ( 1,7 km ) zwischen
    Swiebodzin und Nowy Tomysl
  • Grundstück / Gewerbegrundstück: 140.000 m² zur gewerblichen Nutzung
  • Kaufpreis Grundstück: 10,- €/m²
Grundstücke bei Trzciel Polen
Grundstücke zum Kaufen in Polen vom Immobilienmakler