Baugrundstück am See in Nadnia / Zbaszyn im Powiat Nowotomyski
der Woiwodschaft Großpolen in Polen zum Kaufen / Verkäufer

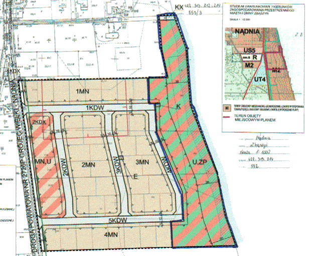
  • Lage: direkt am See der Ortschaft Nadnia / Zbaszyn - Nowotomyski - Großpolen in Polen
  • Baugrundstück / Bauland: 61.000 m² mit Uferfront vom See ( Bentschener See )
  • mögliche Bebauung des Baugrundstücks: Wohnanlage mit Einfamilienhäusern, Ferienhäusern, Apartmenthäusern und eine Teilfläche mit gewerblicher Nutzung ( Gästehäuser, Ferienresort, Ferienanlage, Hotel, Restaurant, Ausflugsgaststätte, Pension, Ferienheim, Seniorenresidenz ... )
  • GRZ: 0,6 / GFZ: 2,0
  • Kaufpreis Baugrundstück / Bauland und weitere Informationen: Auf Anfrage !
Immobilienmakler Verkäufer Baugrundstücke in Polen
E-Mail Immobilienmakler Baugrundstücke Nowotomyski Polen
Bauland Polen
Nadnia Zbaszyn Polen
Verkäufer Baugrundstücke Zbaszyn Nowotomyski Großpolen
Baugrundstücke in Nadnia Polen
Bauland in Nadnia Polen

Baugrundstück / Bauland direkt am See “Jezioro Bledno” / “Jezioro Zbaszynskie” in Nadnia - Zbaszyn der Woiwodschaft Großpolen

Baugrundstück am See Bledno in Polen
Bauland am See in Polen
Baugrundstück am See Jezioro Zbaszynskie in Nadnia Großpolen
Baugrundstück am Jezioro Bledno
Baugrundstücke bei Zbaszyn Polen
Grundstück Bauland am See Bledno
Nadnia in Polen
Steg zum See Bledno
Jezioro Zbaszynskie in Polen
Baugrundstück am Jezioro Bledno in Polen
Baugrundstück am See im Powiat Nowotomyskie Polen

“Jezioro Bledno”
“Jezioro Zbaszynskie”
auch
“Bentschener See”
mit 760 ha

Nadnia

Baugrundstück:
61.000 m²